ЖК ДИНАСТІЯ
КИЇВ
ПЛОЩА
77 м²
ТЕРМІНИ
30 д.
КІМНАТ
2
Головне побажання від замовника – застосувати інтер'єрний стиль у всіх приміщеннях
ЗАДАЧІ:
РІШЕННЯ:
Смак замовників та нашого дизайнера збіглися.
Фотошпалери та ніжно-коричневий колір на матових поверхнях чудово вписався в інтер'єр
Квартира зроблена в одній кольоровій гамі, з використанням сучасних меблів та матеріалів. Практично всі матові поверхні, також тут є сучасне терраццо і фотошпалери.
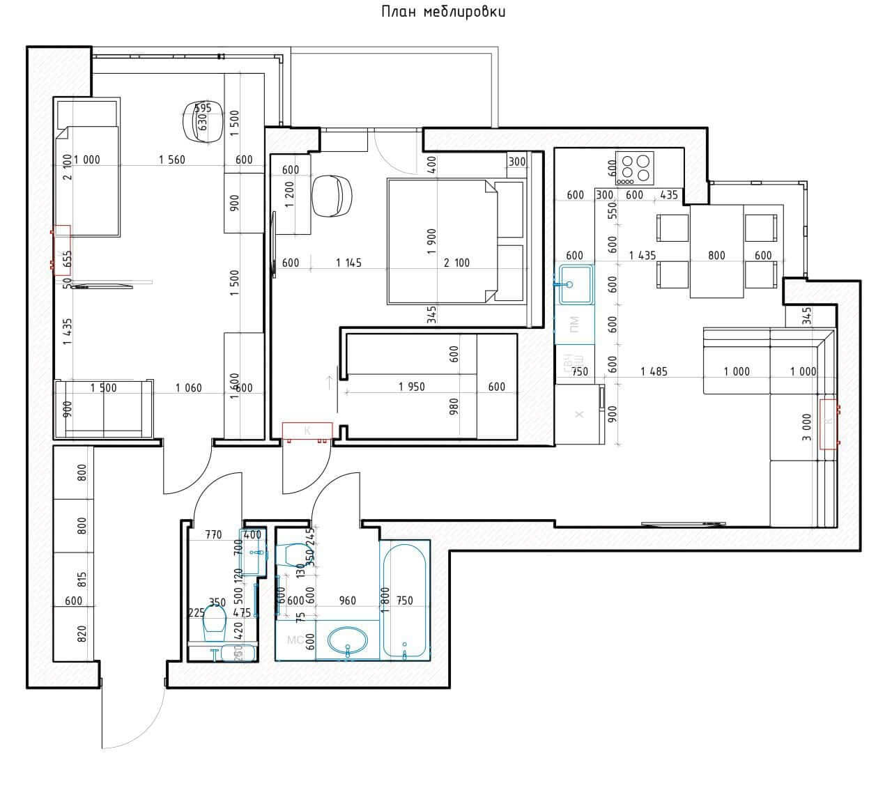
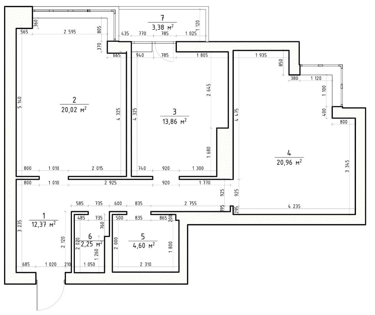
Для збільшення простору приміщень, ми трохи змінили планування квартири
ПЛАНУВАННЯ ДО
І ПІСЛЯ
ПОДИВІМОСЯ
ЩО З ЦЬОГО ВИЙШЛО
КЛІЄНТ ОТРИМАВ:
Якісна візуалізація проекту, толерантність та взаєморозуміння на всіх етапах співпраці.
ВІДГУК КЛІЄНТА
• 3D візуалізації
• Перелік робіт по ремонту
• Повний список матеріалів

• Обмірний план приміщень
• Планувальне рішення
• План монтажу та демонтажу
30 днів
12.03.2019
• План розміщення сантехніки
• План розміщення меблів
• План оздоблення стін та підлоги
• План розміщення світильників
• План розмітки електрики
Також до кожного проєкту ми даруємо сертифікат зі знижкою 10-20% на закупівлю оздоблювальних матеріалів.
ТЕРМІНИ:
ПРОЄКТ БУЛО ЗДАНО:
ЄЛИЗАВЕТА ЛІВОНЧИК
Дизайнер Архітектор
PROJECT
SPAC-
E•
НАД ПРОЄКТОМ ПРАЦЮВАЛИ ДИЗАЙНЕРИ З КОМАНДИ
PROJECT SPACE
ХРИСТИНА ОВЧАРУК
Дизайнер
PROJECT
SPAC-
E•
ПЕРЕГЛЯНУТИ ІНШІ НАШІ ПРОЄКТИ
ЖК ФАЙНА ТАУН
Київ
2
Кімнат
87
М²
20 днів
11.07.2019
ЖК ФРАНЦУЗЬКИЙ КВАРТАЛ
Київ
3
Кімнат
74
М²
30 днів
22.03.2019
ЛИШЕ 10 ПРОЄКТІВ НА МІСЯЦЬ
Задля того, щоб якість нашої роботи постійно зростала і не було зірваних дедлайнів, ми не беремо на опрацювання більше ніж 10 проєктів на місяць
ЩОБ ОПИНИТИСЯ У ДЕСЯТЦІ КЛІЄНТІВ ЦЬОГО І НАСТУПНОГО МІСЯЦЯ, ЗАПОВНІТЬ ФОРМУ

go до нас на каву :)
+38 063 031-63-22
info@projectspace.com.ua
м. Київ, вул. Максима Кривоноса, 5/1

go до нас на каву :)
+38 063 031-63-22
info@projectspace.com.ua
м. Київ, вул. Максима Кривоноса, 5/1
Всі права захищенні
Копіювання матеріалів заборонено
© 2021 Project Space