КОТТЕДЖНЫЙ ГОРОДОК
GRAND VILLAS
г. ВОРЗЕЛЬ
ПЛОЩАДЬ
44 м²
СРОКИ
20 д.
КОМНАТ
1
Обустроить красивое и функциональное рабочее место, которое должно вдохновлять заказчицу на новые работы. Также создать отдельное спальное место на кухне.
ЗАДАЧИ:
РЕШЕНИЕ:
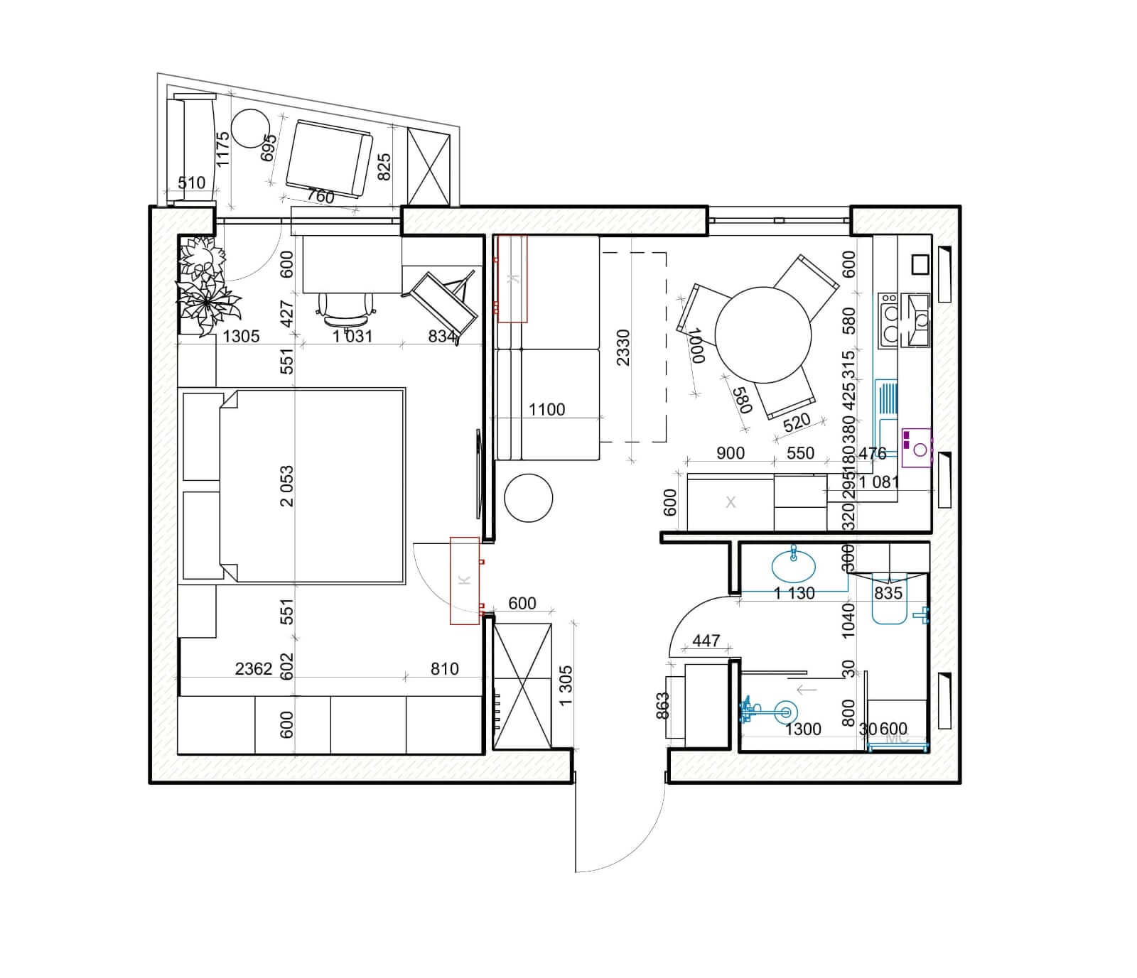
Мы сделали полную перепланировку выделили спальную зону, обыграв ее двухспальным раскладным диваном.
Чтобы стены и пол не пачкались из-за использования красок, мы обыграли рабочую зону для творчества напольной плиткой и декоративными панелями.
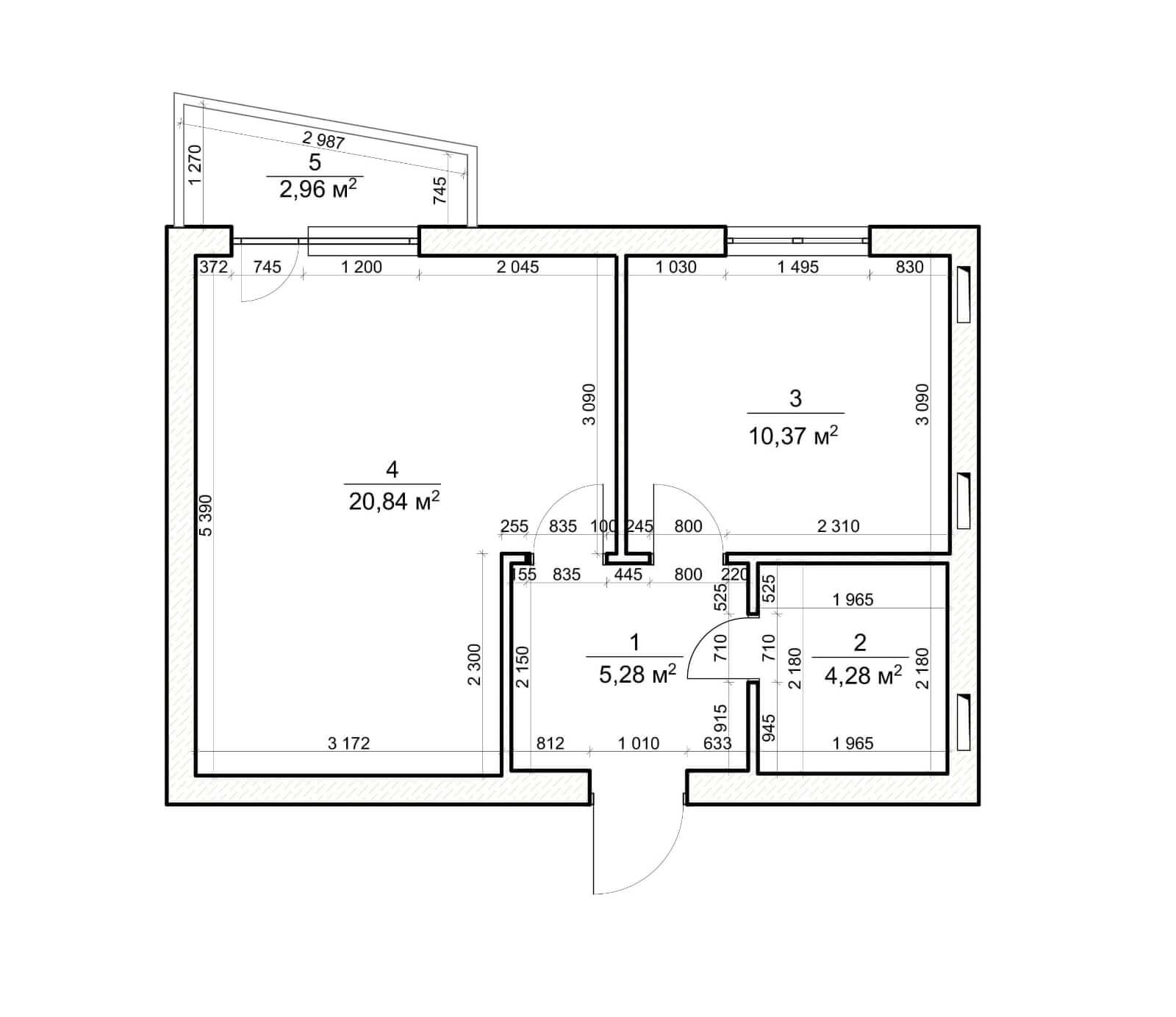
Для увеличения пространства помещений, мы немного изменили планировку квартиры
ПЛАНИРОВКА ДО И ПОСЛЕ
ДАВАЙТЕ ПОСМОТРИМ
ЧТО ИЗ ЭТОГО ПОЛУЧИЛОСЬ
КЛИЕНТ ПОЛУЧИЛ НА РУКИ:
Общались с менеджером Евгением, очень приятный в общении и все слышит и ловит на лету. С дизайном попали в "10ку" с первого раза. Очень качественная работа и приятные цены.
ОТЗЫВ КЛИЕНТА
• 3D визуализации
• Перечень работ по ремонту
• Полный список материалов

• Обмерный план помещений
• Планировочное решение
• План монтажа и демонтажа
20 дней
01.04.2019
• План расстановки сантехники
• План расстановки мебели
• План отделки стен и пола
• План расстановки светильников
• План разметки электрики
Также к каждому проекту мы дарим сертификат со скидкой 10-20% на закупку отделочных материалов.
СРОКИ:
ПРОЕКТ СДАН:
ЕЛИЗАВЕТА ЛИВОНЧИК
Дизайнер Архитектор
PROJECT
SPAC-
E•
НАД ПРОЕКТОМ РАБОТАЛИ ДИЗАЙНЕРЫ ИЗ КОМАНДЫ PROJECT SPACE
ЮЛИЯ ПАВЛОВА
Дизайнер
PROJECT
SPAC-
E•
ЖК COMFORT LIFE
Ирпень, Киевская обл.
2
Комнаты
72
М²
25 дней
ЖК ФРАНЦУЗКИЙ КВАРТАЛ
Киев
1
Комната
46
М²
20 дней
23.03.2019
15.03.2019
СМОТРИТЕ ДРУГИЕ НАШИ ПРОЕКТЫ
ТОЛЬКО 10 ПРОЕКТОВ В МЕСЯЦ
Чтобы качество нашей работы постоянно росло и не было сорванных сроков, мы не берем в работу больше 10 проектов в месяц
ЧТОБЫ ПОПАСТЬ В ДЕСЯТКУ КЛИЕНТОВ В ЭТОМ ИЛИ СЛЕДУЮЩЕМ МЕСЯЦЕ, ЗАПОЛНИТЕ ФОРМУ

go к нам на кофе :)
+38 063 031-63-22
info@projectspace.com.ua
г. Киев, ул. Максима Кривоноса, 5/1

go к нам на кофе :)
+38 063 031-63-22
info@projectspace.com.ua
г. Киев, ул. Максима Кривоноса, 5/1
Все права защищены
Копирование материалов запрещено
© 2019 Project Space