ТАУНХАУСИ LYKKE
ПЛОЩА
104,3 м²
ТЕРМІНИ
50 д.
КІМНАТ
4
БЮДЖЕТ
750 $/м²
ЛОКАЦІЯ
смт. Гостомель, вул. Свято-Покровська
ПРО ПРОЄКТ:
Триповерховий таунхаус з функціональним зонуванням за поверхами. Основні матеріали є спільними для всього будинку, проте використовуються акценти задля розмежування простору кожного члена сім'ї. Перший поверх - спільна зона для проведення часу з сім'єю і прийому гостей, другий поверх - дитяча зона, а третій - повністю господарська.
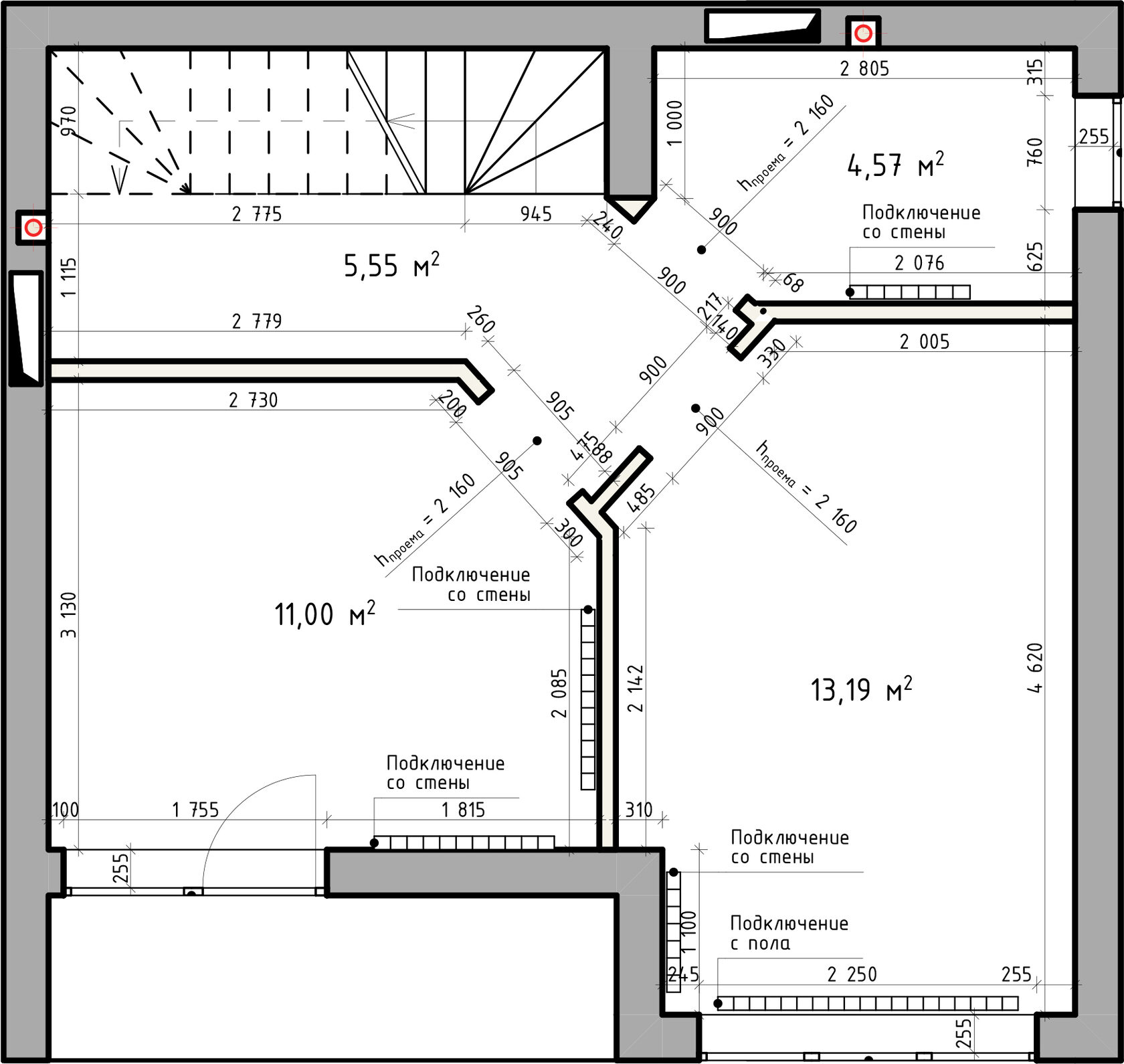
ПЛАНУВАННЯ
ПОДИВИМОСЯ НА ВІЗУАЛІЗАЦІЮ
КЛІЄНТ ОТРИМАВ:
• 3D візуалізації
• Перелік робіт по ремонту
• Повний список матеріалів

• Обмірний план приміщень
• Планувальне рішення
• План монтажу та демонтажу
50 днів
05.06.2023
• План розміщення сантехніки
• План розміщення меблів
• План оздоблення стін та підлоги
• План розміщення світильників
• План розмітки електрики
Також замовник отримав персональну знижку на закупівлю матеріалів та меблів
ТЕРМІНИ:
ПРОЄКТ БУЛО ЗДАНО:
Важливо
By Step Design дає вам додаткові знижки від постачальників матеріалів та меблів. Наша концепція - це заробіток тільки на створенні дизайн-проєктів, не секрет що постачальники співпрацюють з виконавцями робіт даючи додаткові знижки. Всю цю знижку у повному обсязі ми передаємо вам.
Ми цінуємо ваш час та комфорт, тому хочемо дізнатися, яким способом нам буде зручно з вами зв'язатися?
Зв'язатися з нами:
Ми в соцмережах:
Усі права захищенні
Копіювання матеріалів заборонено
© 2024 Bystep Design