ЖК НОВА АНГЛІЯ
ПЛОЩА
49.9 м²
ТЕРМІНИ
40 д.
КІМНАТ
1
БЮДЖЕТ
780 $/м²
ЛОКАЦІЯ
Київ, вул. Михайла Максимовича
ПРО ПРОЄКТ:
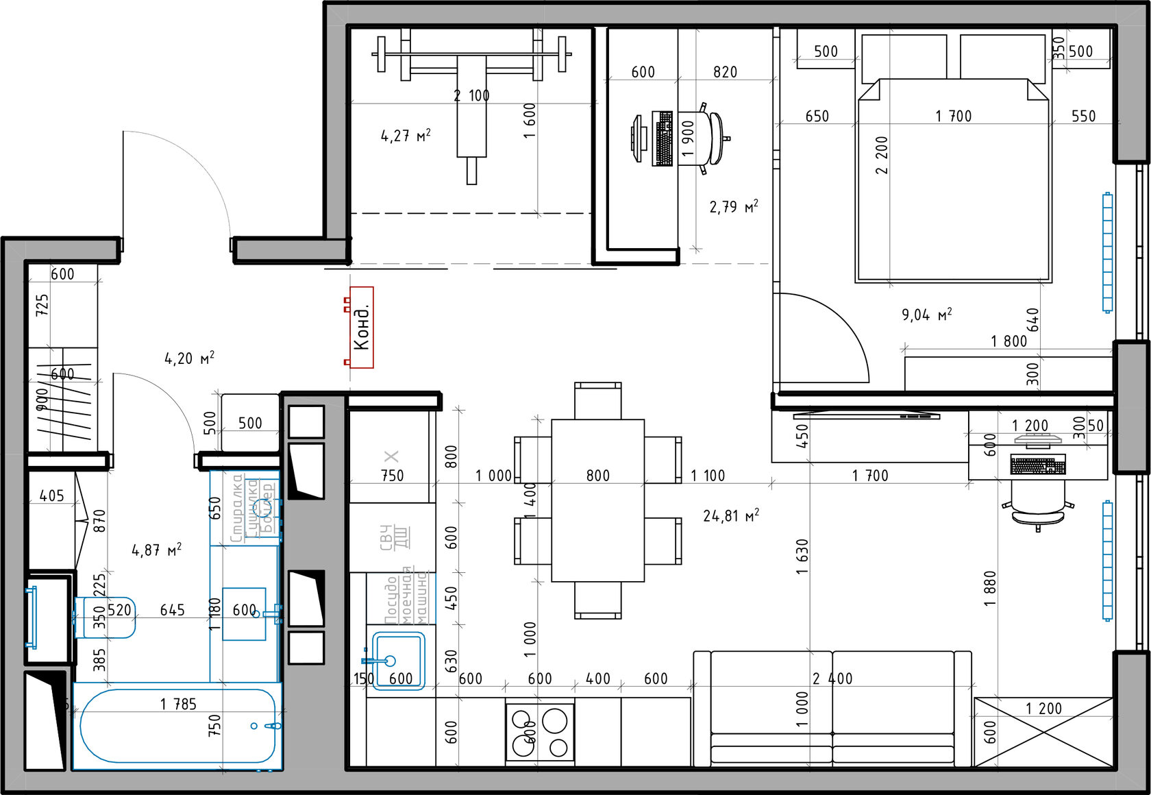
Використання світлопроникних розсувних скляних перетинок. Наявний сучасний молочний інтер'єр з теракотовими акцентами. Квартира перепланована з виділенням кількох функціональних зон, таких як: кухня-вітальня з робочим місцем, спальня, міні-кабінет, домашня спортивна зала, передпокій
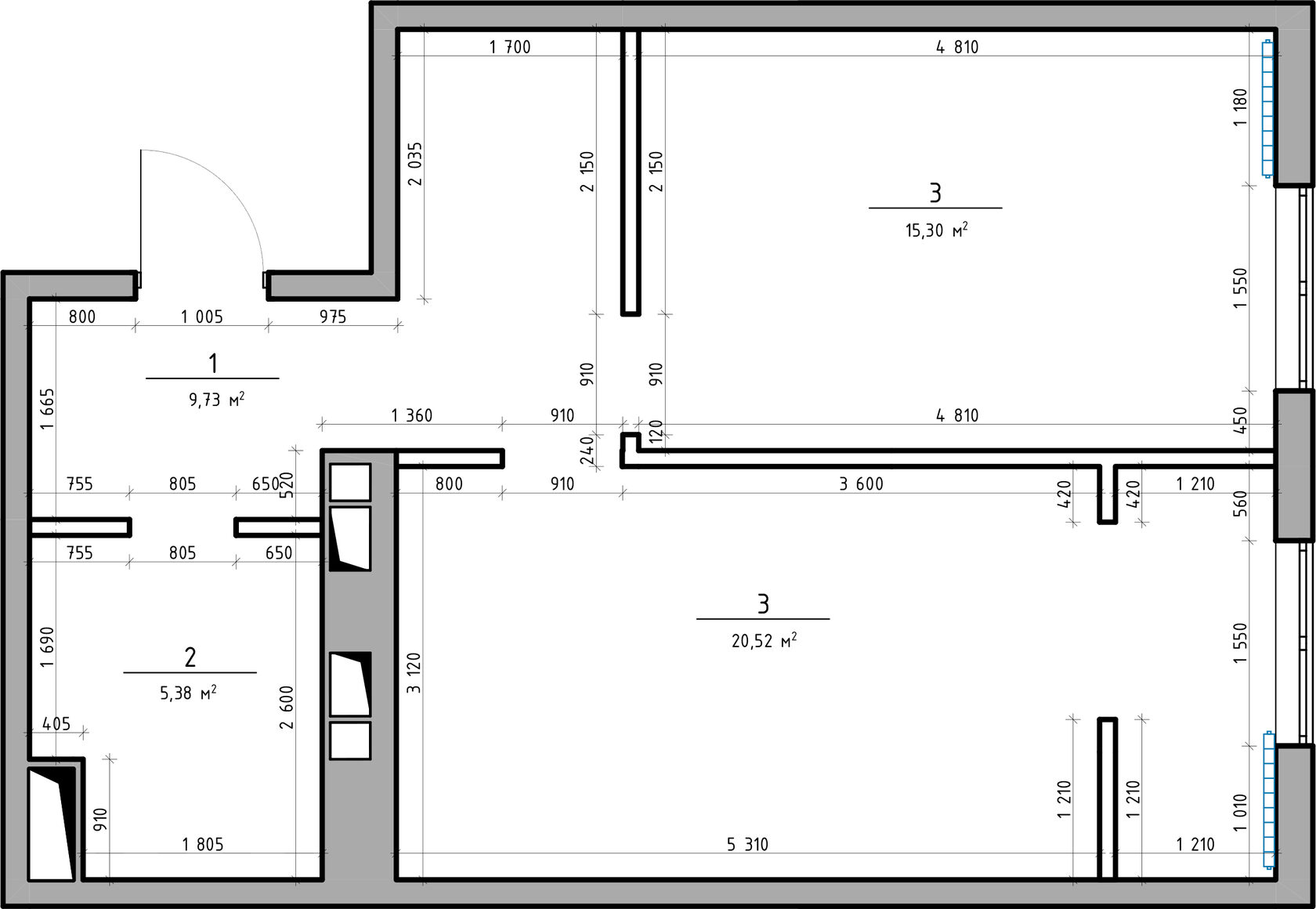
ПЛАНУВАННЯ
ПОДИВИМОСЯ НА ВІЗУАЛІЗАЦІЮ
КЛІЄНТ ОТРИМАВ:
• 3D візуалізації
• Перелік робіт по ремонту
• Повний список матеріалів

• Обмірний план приміщень
• Планувальне рішення
• План монтажу та демонтажу
40 днів
28.10.2023
• План розміщення сантехніки
• План розміщення меблів
• План оздоблення стін та підлоги
• План розміщення світильників
• План розмітки електрики
Також замовник отримав персональну знижку на закупівлю матеріалів та меблів
ТЕРМІНИ:
ПРОЄКТ БУЛО ЗДАНО:
Важливо
By Step Design дає вам додаткові знижки від постачальників матеріалів та меблів. Наша концепція - це заробіток тільки на створенні дизайн-проєктів, не секрет що постачальники співпрацюють з виконавцями робіт даючи додаткові знижки. Всю цю знижку у повному обсязі ми передаємо вам.
Ми цінуємо ваш час та комфорт, тому хочемо дізнатися, яким способом нам буде зручно з вами зв'язатися?
Зв'язатися з нами:
Ми в соцмережах:
Усі права захищенні
Копіювання матеріалів заборонено
© 2024 Bystep Design