ЖК СВЯТОБОР
ПЛОЩАДЬ
58.7 м²
СРОКИ
45 д.
КОМНАТ
3
БЮДЖЕТ
790 $/м²
ЛОКАЦИЯ
Киев, ул. Львовская
ОСОБЕННОСТЬ:
Максимальное использование пространства для каждого члена семьи. Натуральные оттенки с использованием современных отделочных материалов. Присутсвует четкое разделение пространства, функциональная кухня-гостинная, детская для двоих, а также спальня с гардеробом и два раздельных санузла.
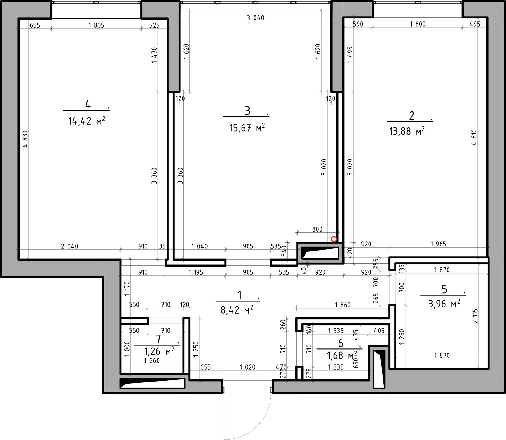
ПЛАНИРОВКА И ОБМЕР
ДАВАЙТЕ ПОСМОТРИМ
ЧТО ИЗ ЭТОГО ПОЛУЧИЛОСЬ
КЛИЕНТ ПОЛУЧИЛ НА РУКИ:
• 3D визуализации
• Перечень работ по ремонту
• Полный список материалов

• Обмерный план помещений
• Планировочное решение
• План монтажа и демонтажа
45 дней
04.08.2021
• План расстановки сантехники
• План расстановки мебели
• План отделки стен и пола
• План расстановки светильников
• План разметки электрики
Также к каждому проекту мы дарим сертификат со скидкой 10-20% на закупку отделочных материалов.
СРОКИ:
ПРОЕКТ СДАН:
АННА ПАТИНКО
Дизайнер
PROJECT
SPAC-
E•
НАД ПРОЕКТОМ РАБОТАЛИ ДИЗАЙНЕРЫ ИЗ КОМАНДЫ PROJECT SPACE
ЕВГЕНИЙ ЗАВАЛЬНЫЙ
Основатель Project Space
PROJECT
SPAC-
E•
СМОТРИТЕ ДРУГИЕ НАШИ ПРОЕКТЫ
ЖК TIME
18.12.2020
Киев
ПЛОЩАДЬ
105 м²
КОМНАТ
4
СРОКИ
40 дней
ЖК СЛАВУТИЧ
05.03.2021
Киев, просп. Миколи Бажана
ПЛОЩАДЬ
104,4 м²
КОМНАТ
4
СРОКИ
60 дней
ЖК BUSOV HILL
05.03.2021
Киев, ул. Бусловская
ПЛОЩАДЬ
104,3 м²
КОМНАТ
4
СРОКИ
45 дней
ТОЛЬКО 10 ПРОЕКТОВ В МЕСЯЦ
Чтобы качество нашей работы постоянно росло и не было сорванных сроков, мы не берем в работу больше 10 проектов в месяц
ЧТОБЫ ПОПАСТЬ В ДЕСЯТКУ КЛИЕНТОВ В ЭТОМ ИЛИ СЛЕДУЮЩЕМ МЕСЯЦЕ, ЗАПОЛНИТЕ ФОРМУ

go к нам на кофе :)
+38 063 031-63-22
info@projectspace.com.ua
г. Киев, ул. Максима Кривоноса, 5/1

go к нам на кофе :)
+38 063 031-63-22
info@projectspace.com.ua
г. Киев, ул. Максима Кривоноса, 5/1
Все права защищены
Копирование материалов запрещено
© 2019 Project Space