ЖК TIME
ПЛОЩА
105 м²
ТЕРМІНИ
40 д.
КІМНАТ
4
БЮДЖЕТ
1200 $/м²
ЛОКАЦІЯ
Київ
ПРО ПРОЄКТ:
Для забезпечення приємного проведення часу всією родиною ми максимально задіяли головне приміщення квартири, зробивши зону відпочинку з книжковими стелажами, місцем для фортепіано, їдальнею та кухнею.
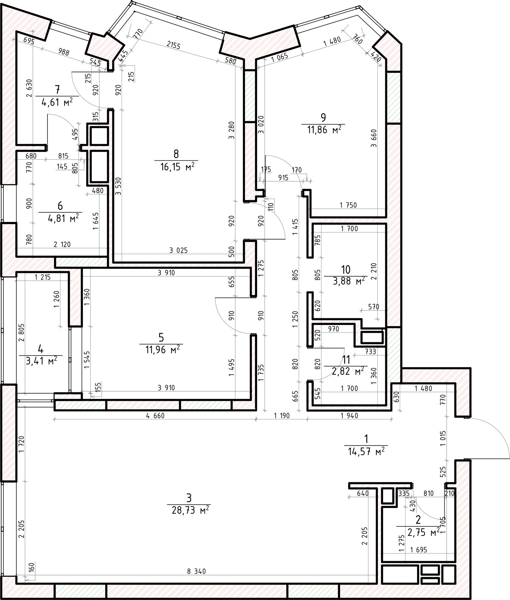
ПЛАНУВАННЯ
ПОДИВИМОСЯ НА ВІЗУАЛІЗАЦІЮ
КЛІЄНТ ОТРИМАВ:
• 3D візуалізації
• Перелік робіт по ремонту
• Повний список матеріалів

• Обмірний план приміщень
• Планувальне рішення
• План монтажу та демонтажу
40 днів
18.01.2021
• План розміщення сантехніки
• План розміщення меблів
• План оздоблення стін та підлоги
• План розміщення світильників
• План розмітки електрики
Також замовник отримав персональну знижку на закупівлю матеріалів та меблів
ТЕРМІНИ:
ПРОЄКТ БУЛО ЗДАНО:
Важливо
By Step Design дає вам додаткові знижки від постачальників матеріалів та меблів. Наша концепція - це заробіток тільки на створенні дизайн-проєктів, не секрет що постачальники співпрацюють з виконавцями робіт даючи додаткові знижки. Всю цю знижку у повному обсязі ми передаємо вам.
Ми цінуємо ваш час та комфорт, тому хочемо дізнатися, яким способом нам буде зручно з вами зв'язатися?
Зв'язатися з нами:
Ми в соцмережах:
Усі права захищенні
Копіювання матеріалів заборонено
© 2024 Bystep Design