ЖК
ФАЙНА ТАУН
КИЇВ
ПЛОЩА
75 м²
ТЕРМІНИ
40 д.
КІМНАТ
3
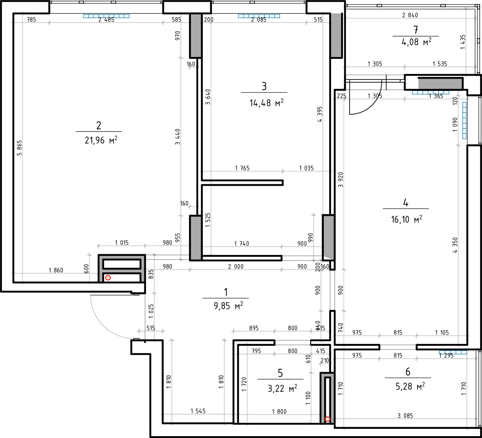
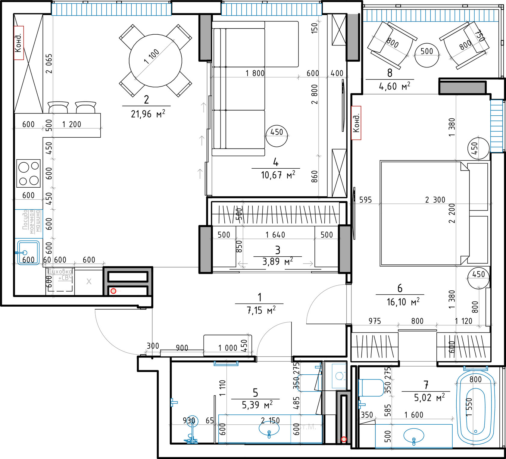
Розмежувати квартиру на дві частини - вітальню і господарську. Також замовники хотіли гарний гардероб зі скляними фасадами.
ЗАДАЧІ:
РІШЕННЯ:
Господарську зону зробили у дальній частині квартири. Вона складається зі спальні з дзеркальною шафою, вбиральні і зони відпочинку. А зоні на кухні передбачено додаткове спальне місце у вигляді розкладного механізму в шафі.
Двері до вбиральні зроблені як одна зі стулок шафи, що створює цілісний вигляд конструкції.
Поєднавши вітальню з кухнею, ми створили спільний простір, який можна відокремити розсувною рейковою конструкцією, а у западині з боку коридору розмістили великий гардероб зі скляними фасадами.
ПЛАНУВАННЯ ДО
І ПІСЛЯ
ПОДИВІМОСЯ
ЩО З ЦЬОГО ВИЙШЛО
КЛІЄНТ ОТРИМАВ:
• 3D візуалізації
• Перелік робіт по ремонту
• Повний список матеріалів

• Обмірний план приміщень
• Планувальне рішення
• План монтажу та демонтажу
40 днів
20.01.2021
• План розміщення сантехніки
• План розміщення меблів
• План оздоблення стін та підлоги
• План розміщення світильників
• План розмітки електрики
Також до кожного проєкту ми даруємо сертифікат зі знижкою 10-20% на закупівлю оздоблювальних матеріалів.
ТЕРМІНИ:
ПРОЄКТ БУЛО ЗДАНО:
ЮЛІЯ ПАВЛОВА
Дизайнер
PROJECT
SPAC-
E•
НАД ПРОЄКТОМ ПРАЦЮВАЛИ ДИЗАЙНЕРИ З КОМАНДИ
PROJECT SPACE
ЯНА МАЧУКАЙТЕ
Дизайнер Архітектор
PROJECT
SPAC-
E•
ЖК TIME
Київ
4
Кімнати
105
М²
40 днів
ЖК PARK LAKE CITY
Київ
3
Кімнати
114
М²
40 днів
18.12.2020
25.09.2020
ПЕРЕГЛЯНУТИ ІНШІ НАШІ ПРОЄКТИ
ЛИШЕ 10 ПРОЄКТІВ НА МІСЯЦЬ
Задля того, щоб якість нашої роботи постійно зростала і не було зірваних дедлайнів, ми не беремо на опрацювання більше ніж 10 проєктів на місяць
ЩОБ ОПИНИТИСЯ У ДЕСЯТЦІ КЛІЄНТІВ ЦЬОГО І НАСТУПНОГО МІСЯЦЯ, ЗАПОВНІТЬ ФОРМУ

go до нас на каву :)
+38 063 031-63-22
info@projectspace.com.ua
м. Київ, вул. Максима Кривоноса, 5/1

go до нас на каву :)
+38 063 031-63-22
info@projectspace.com.ua
м. Київ, вул. Максима Кривоноса, 5/1
Усі права захищені
Копіювання матеріалів заборонено
© 2021 Project Space