ЖК КАРАВАЄВІ ДАЧІ
КИЇВ
ПЛОЩА
59 м²
ТЕРМІНИ
25 д.
КІМНАТ
2
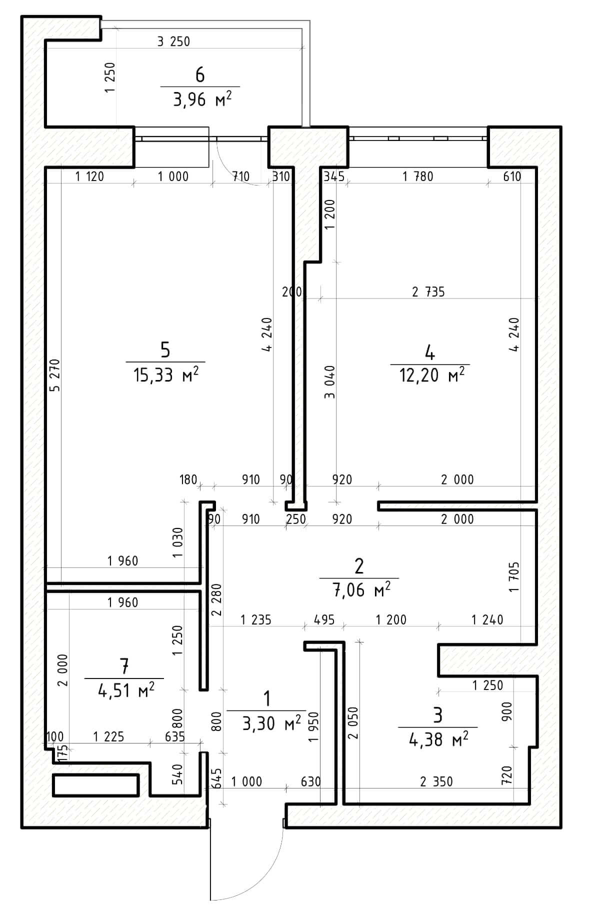
Збільшити зону кухні. Від забудовника, зона кухні була всього 4,5 м2,
ЗАДАЧІ:
РІШЕННЯ:
Демонтували частину стін та поміняли місцями санвузол із кухнею. Вийшла чудова студія. У кресленнях ми детально описали технічне завдання для гідроізоляції, щоб уникнути проблем із мокрими зонами.
Інтер'єрне рішення було обрано на підставі побажання замовника та на основі існуючих меблів.
ПЛАНУВАННЯ ДО
І ПІСЛЯ
ПОДИВІМОСЯ
ЩО З ЦЬОГО ВИЙШЛО
КЛІЄНТ ОТРИМАВ:
Наша семья абсолютно удовлетворена тем, как вы смогли выделить все необходимые зоны в небольшой квартире, выдержав их в одном стиле с учетом наших пожеланий.
ВІДГУК КЛІЄНТА
• 3D візуалізації
• Перелік робіт по ремонту
• Повний список матеріалів

• Обмірний план приміщень
• Планувальне рішення
• План монтажу та демонтажу
25 днів
15.02.2019
• План розміщення сантехніки
• План розміщення меблів
• План оздоблення стін та підлоги
• План розміщення світильників
• План розмітки електрики
Також до кожного проєкту ми даруємо сертифікат зі знижкою 10-20% на закупівлю оздоблювальних матеріалів.
ТЕРМІНИ:
ПРОЄКТ БУЛО ЗДАНО:
ЄЛИЗАВЕТА ЛІВОНЧИК
Дизайнер Архітектор
PROJECT
SPAC-
E•
НАД ПРОЄКТОМ ПРАЦЮВАЛИ ДИЗАЙНЕРИ З КОМАНДИ
PROJECT SPACE
ХРИСТИНА ОВЧАРУК
Дизайнер
PROJECT
SPAC-
E•
ПЕРЕГЛЯНУТИ ІНШІ НАШІ ПРОЄКТИ
ЖК ФРАНЦУЗЬКИЙ КВАРТАЛ
Київ
3
Кімнат
74
М²
30 днів
22.03.2019
ЖК ДИНАСТІЯ
Київ
2
Кімнат
77
М²
30 днів
12.03.2019
ЛИШЕ 10 ПРОЄКТІВ НА МІСЯЦЬ
Задля того, щоб якість нашої роботи постійно зростала і не було зірваних дедлайнів, ми не беремо на опрацювання більше ніж 10 проєктів на місяць
ЩОБ ОПИНИТИСЯ У ДЕСЯТЦІ КЛІЄНТІВ ЦЬОГО І НАСТУПНОГО МІСЯЦЯ, ЗАПОВНІТЬ ФОРМУ

go до нас на каву :)
+38 063 031-63-22
info@projectspace.com.ua
м. Київ, вул. Максима Кривоноса, 5/1

go до нас на каву :)
+38 063 031-63-22
info@projectspace.com.ua
м. Київ, вул. Максима Кривоноса, 5/1
Усі права захищені
Копіювання матеріалів заборонено
© 2021 Project Space