ЖК COMFORT LIFE
м. ІРПІНЬ
ПЛОЩА
72 м²
ТЕРМІНИ
25 д.
КІМНАТ
2
Максимально зберегти планування та помістити в інтер'єр зелений колір
ЗАДАЧІ:
РІШЕННЯ:
Для цього планування ми підібрали меблі за розміром і вони добре зберегли корисну площу. Ми тонко використовували колір у деяких елементах, наголосивши на інтер'єрі
У цьому проєкті замовник повністю нам довірився, а ми, у свою чергу, прислухалися до його побажань.
Ми максимально використали площу, але при цьому залишили квартиру просторою.
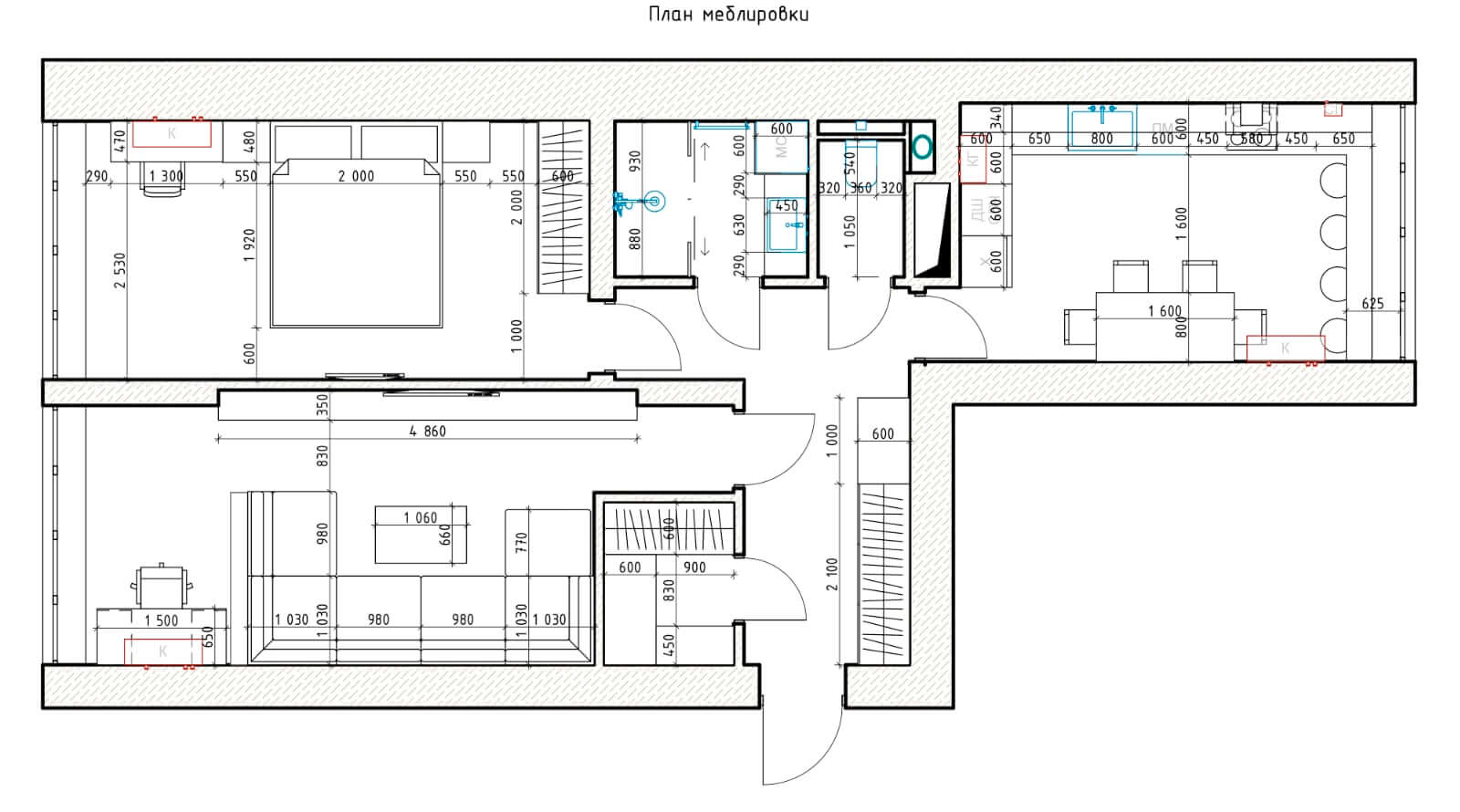
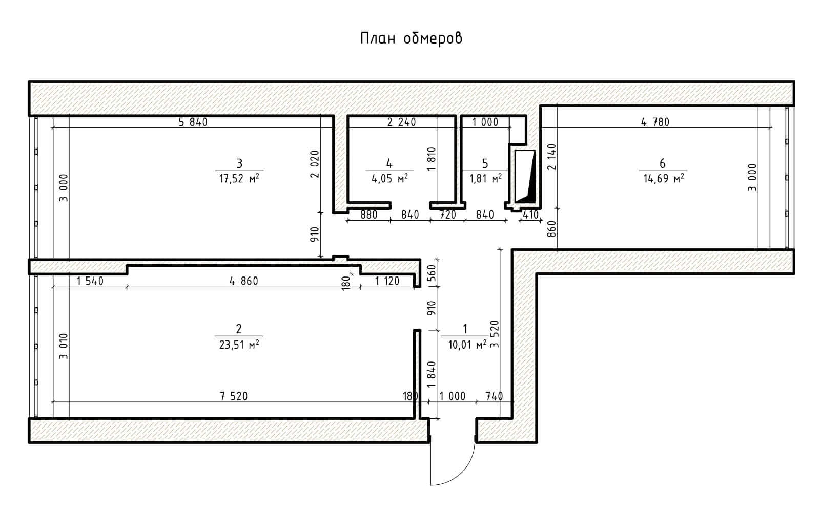
ПЛАНУВАННЯ ДО
І ПІСЛЯ
ПОДИВІМОСЯ
ЩО З ЦЬОГО ВИЙШЛО
КЛІЄНТ ОТРИМАВ:
Сделали очень удачную перепланировку помещений. Сейчас начинаю делать ремонт. Электрик получил полную схему разводки электрики и расположения элементов. Это сэкономило мне кучу времени.
ВІДГУК КЛІЄНТА
• 3D візуалізації
• Перелік робіт по ремонту
• Повний список матеріалів

• Обмірний план приміщень
• Планувальне рішення
• План монтажу та демонтажу
25 днів
23.03.2019
• План розміщення сантехніки
• План розміщення меблів
• План оздоблення стін та підлоги
• План розміщення світильників
• План розмітки електрики
Також до кожного проєкту ми даруємо сертифікат зі знижкою 10-20% на закупівлю оздоблювальних матеріалів.
ТЕРМІНИ:
ПРОЄКТ БУЛО ЗДАНО:
ЄЛИЗАВЕТА ЛІВОНЧИК
Дизайнер Архітектор
PROJECT
SPAC-
E•
НАД ПРОЄКТОМ ПРАЦЮВАЛИ ДИЗАЙНЕРИ З КОМАНДИ
PROJECT SPACE
ВІТАЛІНА ЖИТНІЧ
Дизайнер
PROJECT
SPAC-
E•
ПЕРЕГЛЯНЬТЕ ІНШІ НАШІ ПРОЄКТИ
ЖК КАРАВАЄВІ ДАЧІ
Київ
2
Кімнати
59
М²
25 днів
15.02.2019
ЖК ДИНАСТІЯ
Київ
2
Комнати
77
М²
30 днів
12.03.2019
ЛИШЕ 10 ПРОЄКТІВ НА МІСЯЦЬ
Задля того, щоб якість нашої роботи постійно зростала і не було зірваних дедлайнів, ми не беремо на опрацювання більше ніж 10 проєктів на місяць
ЩОБ ОПИНИТИСЯ У ДЕСЯТЦІ КЛІЄНТІВ ЦЬОГО І НАСТУПНОГО МІСЯЦЯ, ЗАПОВНІТЬ ФОРМУ

go до нас на каву :)
+38 063 031-63-22
info@projectspace.com.ua
м. Київ, вул. Максима Кривоноса, 5/1

go до нас на каву :)
+38 063 031-63-22
info@projectspace.com.ua
м. Київ, вул. Максима Кривоноса, 5/1
Всі права захищенні
Копіювання матеріалів заборонено
© 2021 Project Space